Carolina Springs Town Center Development to Bring New Businesses, Housing, and Road Improvements to Holly Springs
Project will include a grocery store, restaurants, office space, residential units, and public parks, all designed to create a walkable community hub.
Holly Springs, NC, Feb. 20, 2025 — A major mixed-use development is set to reshape Holly Springs as town officials move forward with plans for the Carolina Springs Town Center. The project, which was discussed at the Town Council meeting held on February 18th, will include a grocery store, restaurants, office space, residential units, and public parks, all designed to create a walkable community hub.
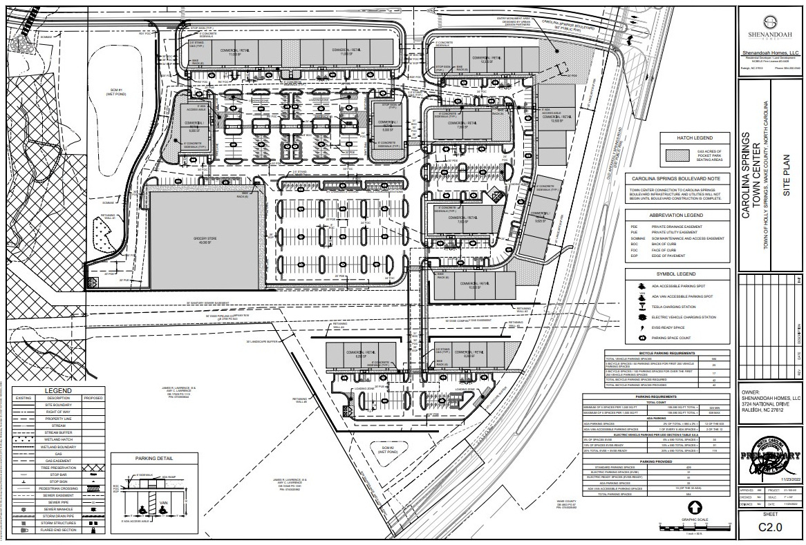
The town center will feature a 50,000-square-foot grocery store, multiple restaurant spaces, and service-based businesses to support the growing population. Office space will be available for businesses looking to establish a presence in Holly Springs and residential options will include multi-family housing, townhomes, and apartments. A mid-size hotel is also planned to accommodate business travelers and visitors.
Infrastructure improvements are a key part of the project.
- Water and sewer extensions will connect to existing systems, and a fire flow analysis confirmed that the town can support the increased demand. 
- Road widening and new traffic signals will help manage the anticipated vehicle increase. Old Holly Springs Apex Road will be widened along the property frontage, and Carolina Springs Boulevard will provide two new access points to the development. 
- Traffic lights will be installed at Old Holly Springs Apex Road intersections with Carolina Springs Boulevard and Woods Creek Road, as well as at the NC 540 eastbound ramp at Viridia Parkway. 
These updates are expected to be in place by summer 2025.
Town officials are also prioritizing pedestrian-friendly features, including a 1.5-mile greenway trail connecting to the 12 Oaks neighborhood. Parks, shaded seating areas, and an event plaza will provide space for outdoor concerts, festivals, and community gatherings.
Residents have raised concerns about traffic congestion and green space preservation. Town officials have reassured the community that road improvements and strategic planning will help minimize disruptions while supporting sustainable growth. Housing affordability was also discussed, with developers considering potential mixed-income housing options to ensure diverse living spaces.
While tenant selection is ongoing, the development will include a mix of local and national businesses, focusing on creating a balance between essential services and community-driven retail.
With its modern design, transportation improvements, and economic opportunities, the Carolina Springs Town Center is expected to become a major commercial and residential hub. Town leaders will continue gathering community feedback as they finalize zoning and infrastructure plans.



The original plan of adding a golf cart trail between 12 Oaks and Carolina Springs was an excellent idea. There are a lot of cart users in 12 Oaks that would use a cart path to go to the Carolina Springs Town Center. This would be exceptionally good for our environment, and would have less cars, and congestion on the road. Please give the cart path priority!